En vigueur

Maison de plain-pied

8624 Boul. Ste-Anne, Château-Richer

Vue sur la rivière, terrain boisé intime et chaleureux solarium : cet accueillant plain-pied offre un cadre de vie agréable, lumineux et vraiment invitant. Plafond cathédrale avec poêle à bois, deux chambres confortables, vaste salon et cuisine fonctionnelle avec électroménagers neufs. Vous profiterez d'un superbe terrain bucolique, d'un garage attaché 28×18, d'un sauna infrarouge, d'un emplacement stratégique près de tous les services ainsi que de plusieurs améliorations récentes (dont plusieurs fenêtres) qui bonifient la qualité du lieu. Une maison soignée, pleine de charme et prête à accueillir ses nouveaux occupants.

ULS : 16131331

Superficie de terrain

1,525 M2

Nombre de pièces

9

Année de construction


339 000 $
+ PLUS D'INFORMATIONS
Nombre de chambre
2
Chambres
Nombre de chambre
1
Salles de bain
Nombre de chambre
{~piscine-details~}
Nombre de chambre
Poêle à bois
Particularités de la propriété
Une propriété chaleureuse offrant un cadre de vie agréable,
lumineux et tourné vers la nature, avec vue sur la rivière
et un terrain boisé intime.
Ce plain-pied de 2011 très bien entretenu, se distingue par
son atmosphère accueillante, son solarium très lumineux et
son salon à plafond cathédrale doté d'un poêle à bois qui
apporte un charme indéniable. Les espaces sont
fonctionnels, bien entretenus et adaptés à une vie simple,
confortable et pratique.

ESPACES INTÉRIEURS

Grande aire de vie ouverte et lumineuse
Salon à plafond cathédrale avec poêle à bois
Deux chambres confortables
Salle de bain complète
Cuisine fonctionnelle avec électroménagers neufs, dont
cuisinière induction (inclus)
Solarium invitant permettant de profiter de la lumière
naturelle
Hall d'entrée avec rangement intégré
Garage attaché 28 × 18, chauffé avec thermopompe, très rare
dans le secteur

TERRAIN & ENVIRONNEMENT

Superbe terrain boisé et intime
Vue sur la rivière
Ambiance bucolique et nature
Aménagement paysager récent : buis + vivaces
Nouveau sentier d'entrée en dalles de ciment (2025)
Trois dalles supplémentaires laissées à l'acheteur
Très grand stationnement 30 places

AMÉLIORATIONS RÉCENTES (2024-2025)

Remplacement des thermos au salon et à la chambre
principale (septembre 2025)
Fenêtres du solarium remplacées entièrement (novembre 2025)
Aménagement paysager complet à l'arrière (2025)
Entrée en dalles de ciment ajoutée à l'avant (2025)

INCLUSIONS NEUVES ET ÉQUIPEMENTS

Réfrigérateur Heinse (2025)
Cuisinière à induction LG (2024)
Lave-vaisselle Bosch (2025)
Laveuse/sécheuse GE superposées (2025)
Thermopompe Heinse (2025) - Garage (et climatiseur dans la
maison)
Sauna infrarouge (2024)
Stores, rideaux et ventilateurs
Double tempo installé pour la saison
Déneigement payé pour l'hiver 2025-2026
Une corde de bois sec
Miroir pleine longueur au hall
Bureau de travail intégré avec armoires

NOTES IMPORTANTES

Vente sans garantie légale, aux risques et périls de
l'acheteur
Emplacement stratégique, près des services
Maison soigneusement entretenue, plusieurs investissements
récents, clé en main
Le VENDEUR donne instruction à l'AGENCE ou au COURTIER
d'informer les acheteurs, ou les courtiers qui les
représentent, qu'il s'engage à ne répondre à aucune
promesse d'achat reçue relativement à l'IMMEUBLE avant 48
heures.
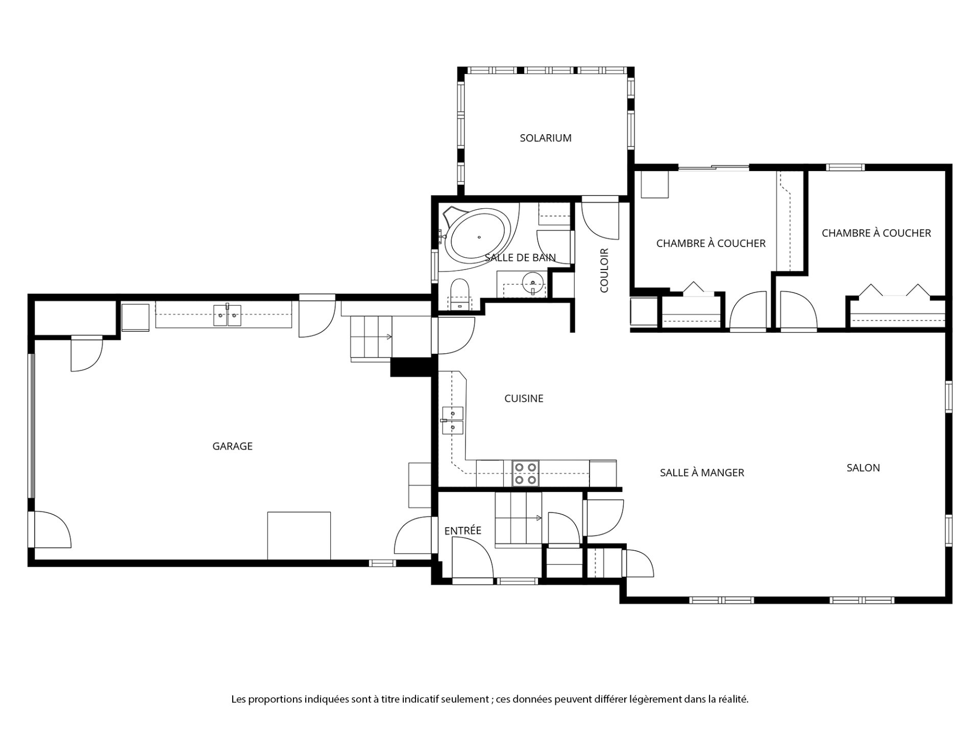
Pièce: Hall d'entrée
Étage: 1er niveau/RDC
Dimensions: 10.6x6.2 P
Planché: Céramique
Pièce: Cuisine
Étage: 1er niveau/RDC
Dimensions: 13.7x13.0 P
Planché: Céramique
Pièce: Salle à manger
Étage: 1er niveau/RDC
Dimensions: 12.1x5.5 P
Planché: Céramique
Pièce: Salon
Étage: 1er niveau/RDC
Dimensions: 22.11x19.4 P
Planché: Plancher flottant
Pièce: Chambre à coucher
Étage: 1er niveau/RDC
Dimensions: 12.7x11.4 P
Planché: Plancher flottant
Pièce: Chambre à coucher
Étage: 1er niveau/RDC
Dimensions: 12.4x11.3 P
Planché: Plancher flottant
Pièce: Salle de bains
Étage: 1er niveau/RDC
Dimensions: 8.9x7.7 P
Planché: Céramique
Pièce: Salle de lavage
Étage: 1er niveau/RDC
Dimensions: 8.8x4.2 P
Planché: Céramique
Pièce: Solarium
Étage: 1er niveau/RDC
Dimensions: 11.9x11.3 P
Planché: Linoléum
Particularités: Bordé par l'eau, Aucun voisin à l'arrière, Terrain boisé : feuillus
Mode de chauffage: Plinthes à convection, Plinthes électriques
Approvisionnement en eau: Municipalité
Énergie pour le chauffage: Électricité
Équipement disponible: Climatiseur mural, Sauna, Semi-meublé, Thermopompe murale
Fenêtres: Bois, PVC
Fondation: Bloc de béton, Pilotis
Base de sous-sol: Dalle de béton au sol
Foyers-poêles: Poêle à bois
Garage: Attaché, Autre, Chauffé
Proximité: Autoroute/Voie rapide, Garderie/CPE, Golf, Hôpital, Piste cyclable, École primaire, Ski alpin, École secondaire, Ski de fond, Sentier de motoneige, Sentier de VTT
Revêtements: Aluminium, Bois
Sous-sol: Aucun sous-sol
Stationnement: Extérieur, Au garage
Système d'égouts: Champ d'épuration, Fosse septique
Aménagement du terrain: Paysager
Type de fenêtre: Manivelle, Porte-fenêtre
Toiture: Bardeaux d'asphalte
Topographie: Plat
Vue: Sur l'eau
Zonage: Résidentiel
Coût d'énergie
Montant: 1870 $
Fréquence: Annuel
Taxes municipales
Montant: 3096 $
Fréquence: Annuel
Année: 2025
Taxes scolaires
Montant: 208 $
Fréquence: Annuel
Année: 2025

Un problème?