En vigueur

Maison à étages

220 Rue des Cimes, Saint-Ferréol-les-Neiges

Saint-Ferréol-les-Neiges, maison sur rue en cul-de-sac offrant tranquillité et vue sur le Mont Ferréol, sans voisin arrière ni à droite. Accès direct aux pistes de vélo, fatbike et ski de fond. Trois chambres, un bureau, foyer, construction de qualité, grande terrasse couverte, atelier pour vélos ou salle de fartage, spa creusé. Intimité, confort et plein air réunis pour une qualité de vie exceptionnelle.

ULS : 17155188

Superficie de terrain

1,071 M2

Nombre de pièces

19

Année de construction


899 000 $
+ PLUS D'INFORMATIONS
Nombre de chambre
4
Chambres
Nombre de chambre
2
Salles de bain
Nombre de chambre
{~piscine-details~}
Nombre de chambre
Foyer au bois
Particularités de la propriété
Le VENDEUR donne instruction à l'AGENCE ou au COURTIER
d'informer les acheteurs, ou les courtiers qui les
représentent, qu'il s'engage à ne répondre à aucune
promesse d'achat reçue relativement à l'IMMEUBLE avant un
délai de 48 heures.
Pièce: Hall d'entrée
Étage: 1er niveau/RDC
Dimensions: 16.2x8.8 P
Planché: Bois
Pièce: Chambre à coucher
Étage: 1er niveau/RDC
Dimensions: 17.3x11.9 P
Planché: Bois
Autre: Salle bain attenante
Pièce: Boudoir
Étage: 1er niveau/RDC
Dimensions: 8.9x7.9 P
Planché: Autre
Autre: Porte-patio
Pièce: Bureau à domicile
Étage: 1er niveau/RDC
Dimensions: 11.6x8.9 P
Planché: Bois
Pièce: Atelier
Étage: 1er niveau/RDC
Dimensions: 11.6x9.3 P
Planché: Autre
Pièce: Salle de bains
Étage: 1er niveau/RDC
Dimensions: 11.9x6.8 P
Planché: Béton
Autre: Plancher chauffant
Pièce: Salle de lavage
Étage: 1er niveau/RDC
Dimensions: 8.1x5.9 P
Planché: Autre
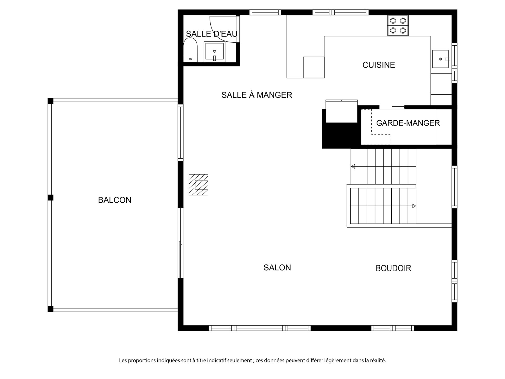
Pièce: Cuisine
Étage: 2ième étage
Dimensions: 14.9x9.1 P
Planché: Bois
Pièce: Penderie (Walk-in)
Étage: 2ième étage
Dimensions: 7.8x2.7 P
Planché: Bois
Pièce: Salle à manger
Étage: 2ième étage
Dimensions: 13.6x9.8 P
Planché: Bois
Pièce: Salon
Étage: 2ième étage
Dimensions: 16.6x14.4 P
Planché: Bois
Pièce: Boudoir
Étage: 2ième étage
Dimensions: 8.9x8.6 P
Planché: Bois
Pièce: Salle d'eau
Étage: 2ième étage
Dimensions: 5.4x4.6 P
Planché:
Pièce: Salle familiale
Étage: Sous-sol
Dimensions: 19.9x16.3 P
Planché: Béton
Autre: Plancher chauffant
Pièce: Chambre à coucher
Étage: Sous-sol
Dimensions: 11.6x11.6 P
Planché: Béton
Autre: Plancher chauffant
Pièce: Chambre à coucher
Étage: Sous-sol
Dimensions: 11.6x9.2 P
Planché: Béton
Autre: Plancher chauffant
Pièce: Salle de bains
Étage: Sous-sol
Dimensions: 11.9x7.6 P
Planché: Béton
Autre: Plancher chauffant
Pièce: Rangement
Étage: Sous-sol
Dimensions: 11.6x5.9 P
Planché: Béton
Autre: Plancher chauffant
Pièce: Autre
Étage: Sous-sol
Dimensions: 8.5x6.8 P
Planché: Béton
Autre: Plancher chauffant
Allée: Non pavée
Armoires: Thermoplastique
Mode de chauffage: Plinthes électriques, Radiant
Approvisionnement en eau: Municipalité
Énergie pour le chauffage: Bois, Électricité
Services disponibles: Détecteur d'incendie
Équipement disponible: Échangeur d'air
Fenêtres: Aluminium
Fondation: Béton coulé
Foyers-poêles: Foyer au bois
Particularités: Aucun voisin à l'arrière, Cul-de-sac, Accès direct aux pistes de ski, Terrain boisé : feuillus
Proximité: Garderie/CPE, Golf, Hôpital, Parc-espace vert, Piste cyclable, École primaire, Ski alpin, École secondaire, Ski de fond, Sentier de motoneige, Sentier de VTT
Revêtements: Clin de cèdre
Salle de bains/salle d'eau: Attenante à la chambre principale
Sous-sol: 6 pieds et plus, Totalement aménagé
Stationnement: Extérieur
Système d'égouts: Municipal
Aménagement du terrain: Paysager
Type de fenêtre: Manivelle
Toiture: Bardeaux d'asphalte
Topographie: En pente, Plat
Vue: Sur la montagne
Coût d'énergie
Montant: 4210 $
Fréquence: Annuel
Taxes municipales
Montant: 4124 $
Fréquence: Annuel
Année: 2025
Taxes scolaires
Montant: 439 $
Fréquence: Annuel
Année: 2025

Un problème?